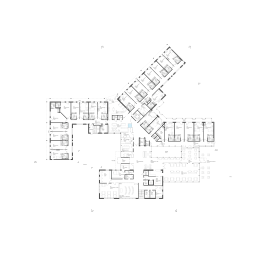
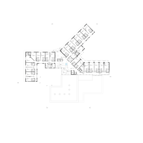
Sonnegrund - Haus für Betagte Wettbewerb

  • Projektstatus Studie / Wettbewerb
  • Planungszeitraum 2021

Ihr Browser ist veraltet!
Bitte aktualisieren Sie Ihren Browser, um diese Website korrekt darzustellen!
www.outdatedbrowser.com