Schulanlage Grava Savognin Wettbewerb
- Projektstatus Studie / Wettbewerb
- Planungszeitraum 2022
- Standort Savognin
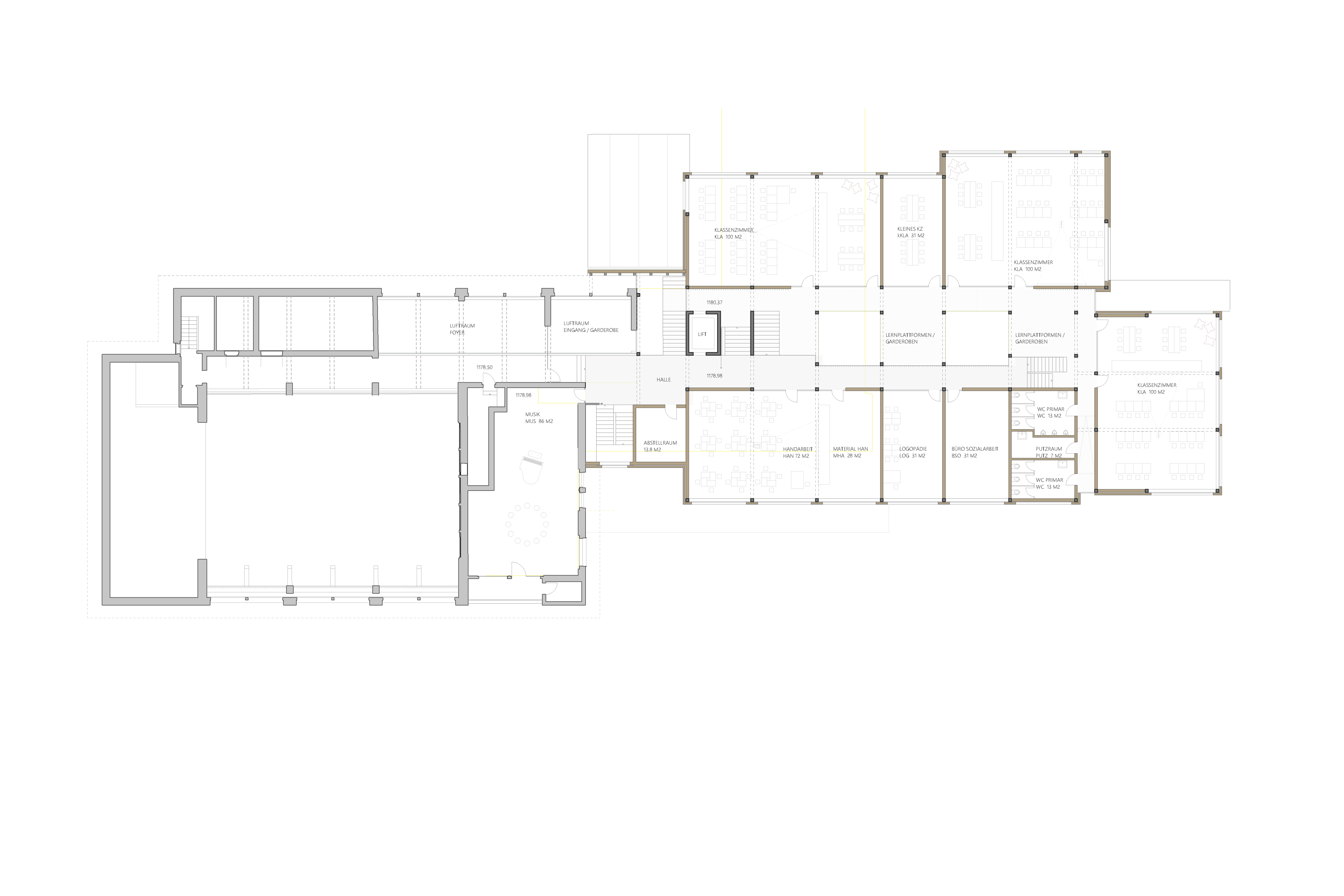
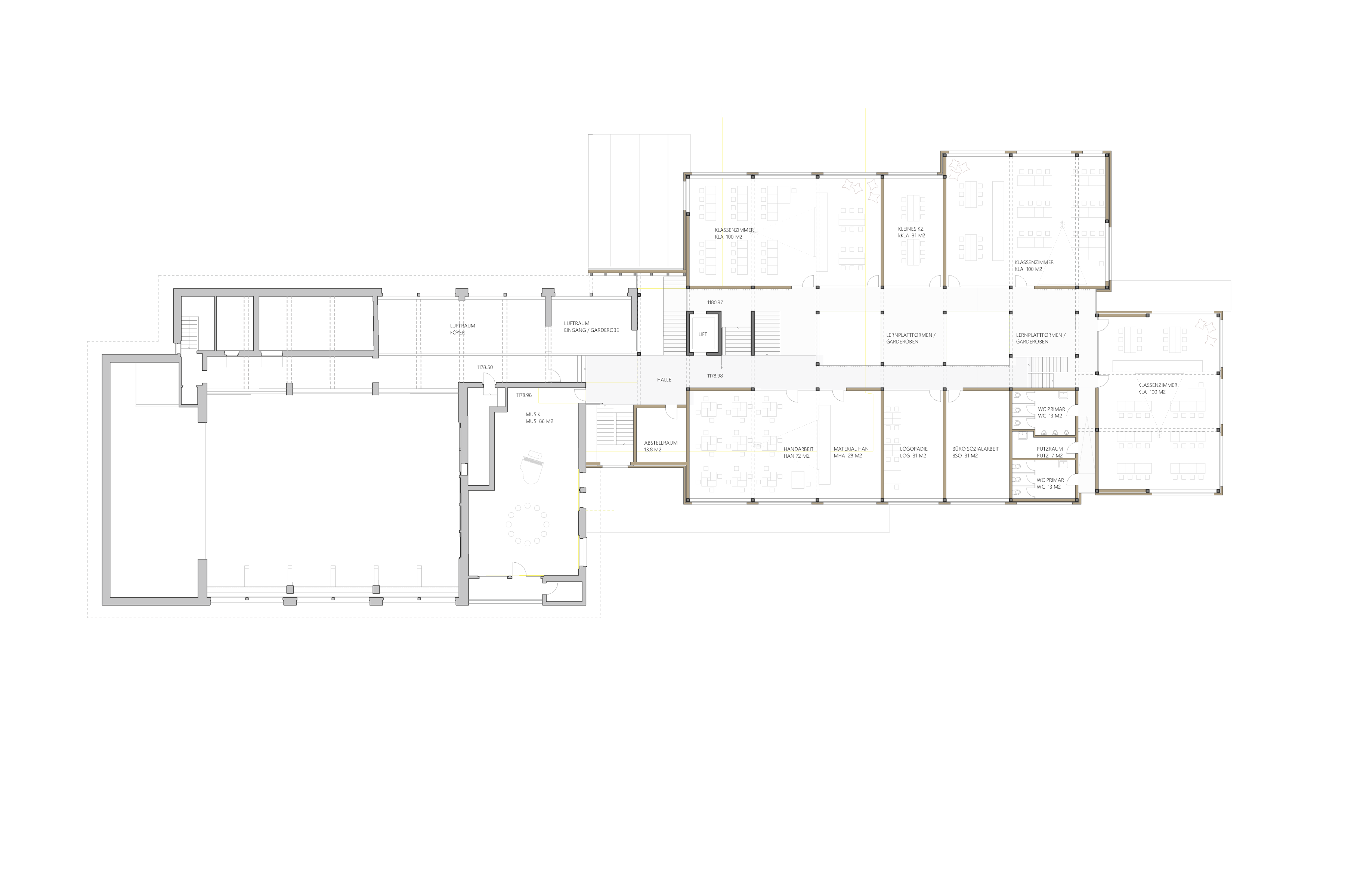
Erweiterung
Erweiterung
		Ihr Browser ist veraltet!
		Bitte aktualisieren Sie Ihren Browser, um diese Website korrekt darzustellen!
		www.outdatedbrowser.com