Schul- und Gemeindezentrum in Mastrils Neubau

  • Projektstatus gebaut
  • Planungszeitraum 1991 – 1995
  • Bauherrschaft Gemeinde Mastrils
  • Standort Mastrils
  • Bauleitung Jüngling und Hagmann
  • Fotografie Ralph Feiner, Malans

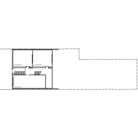
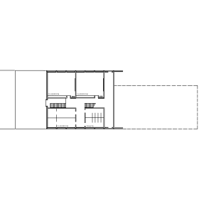
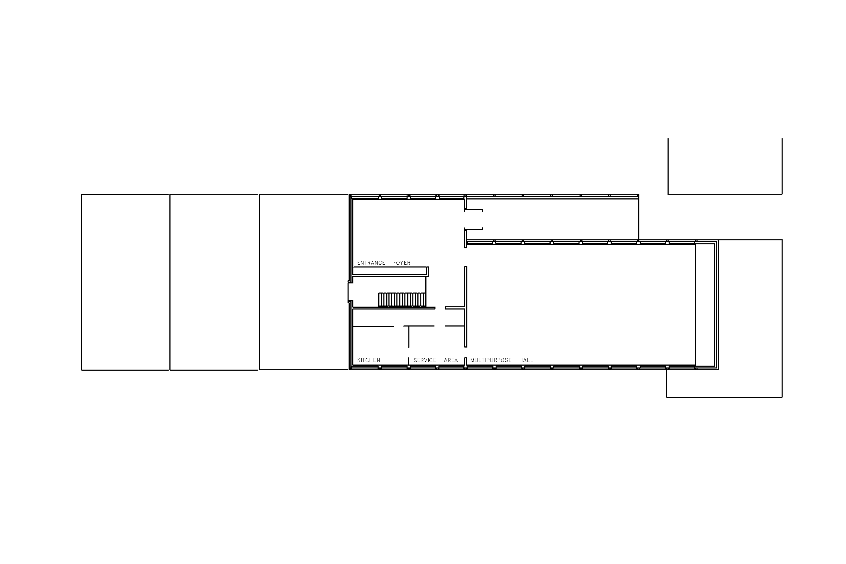
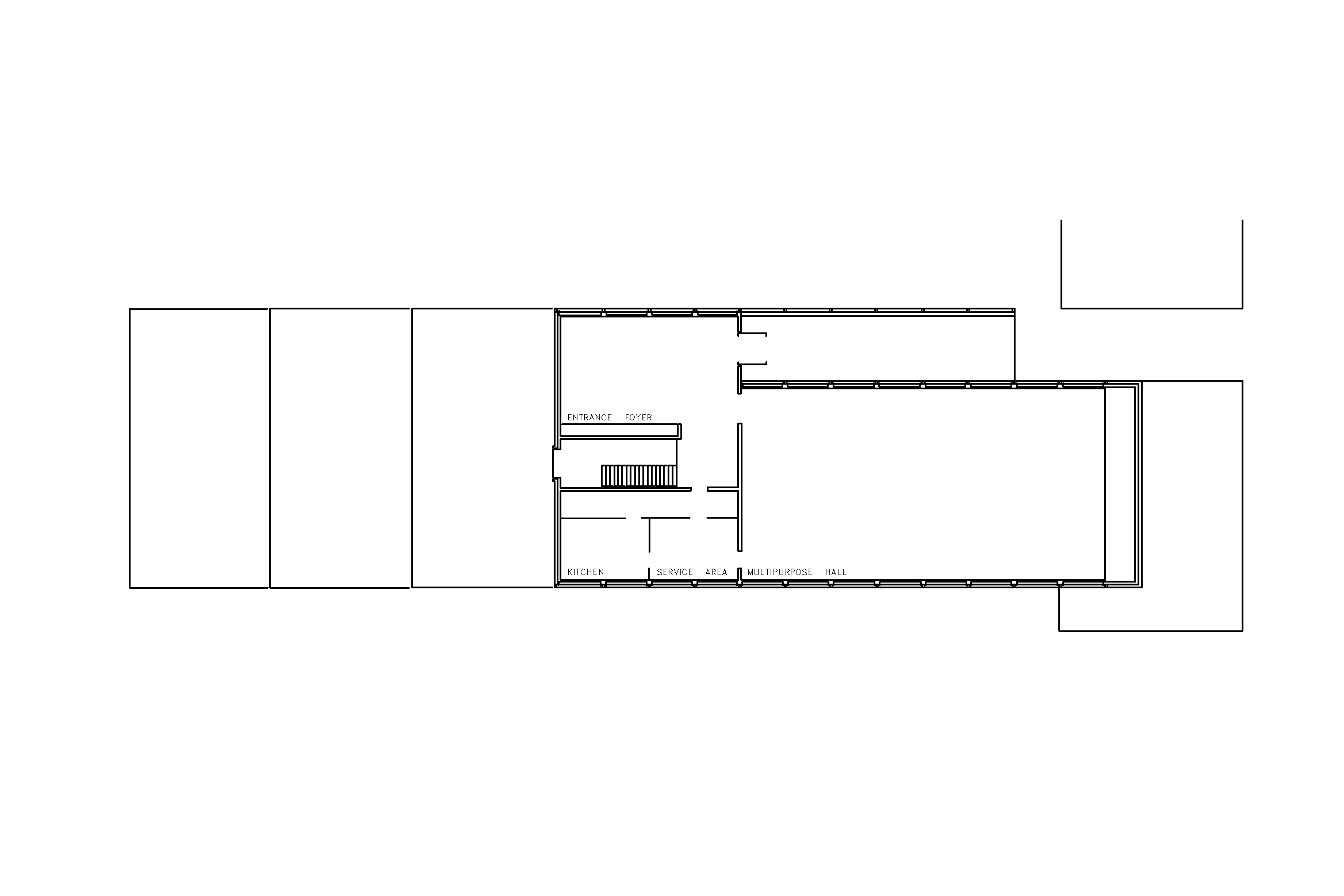
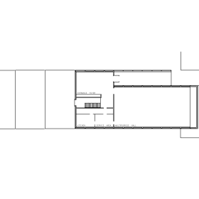
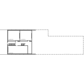
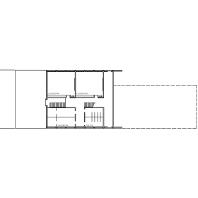
Um die markante Geländekammer im geographischen Mittelpunkt des Dorfes zwischen einer Felskuppe und einem Bachtobel zu unterstützen, wurde der Baukörper senkrecht zur gegebenen Topographie gestellt. Die daraus resultierende Höhendifferenz wurde mit der Aufeinanderschichtung von fünf geschossweise versetzten Trakten bewältigt, die mit einem asymmetrischen Satteldach abgeschlossen sind. Innen ist dieses Thema durch eine über alle Geschosse verlaufende Kaskadentreppe mit stirnseitigen Ausblicken weitergeführt. Diese Baustruktur erlaubt es, verschiedene Nutzungen, wie Klassenzimmer, Kindergarten, Mehrzweckhalle, Wohnung und Gemeindeverwaltung, in eine kompakte Anordnung aufzunehmen.

Ihr Browser ist veraltet!
Bitte aktualisieren Sie Ihren Browser, um diese Website korrekt darzustellen!
www.outdatedbrowser.com