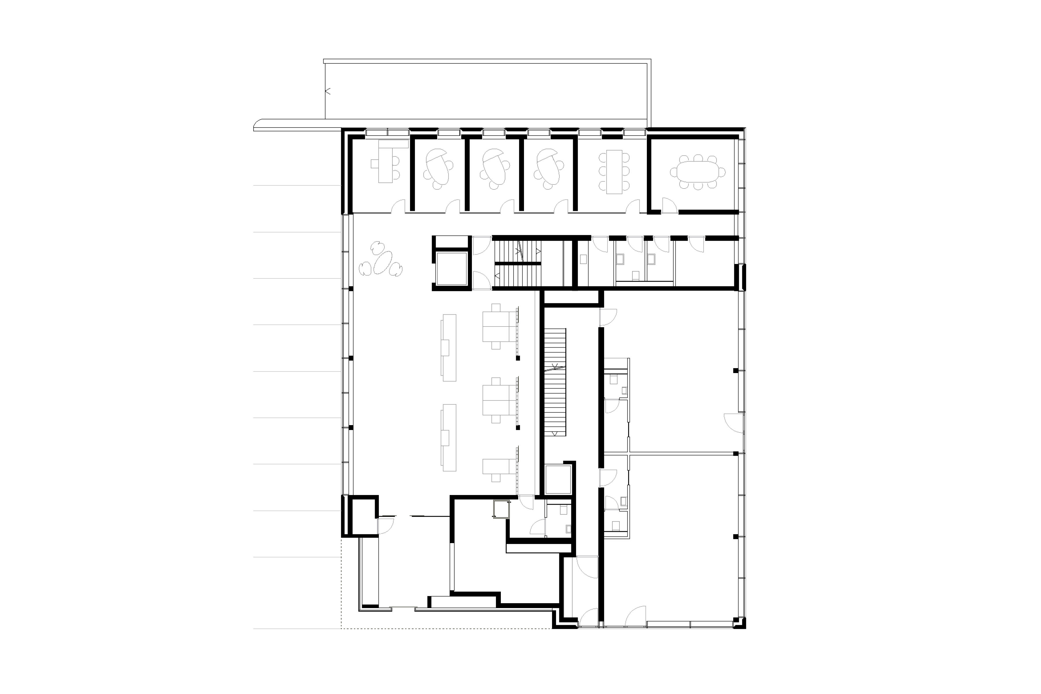
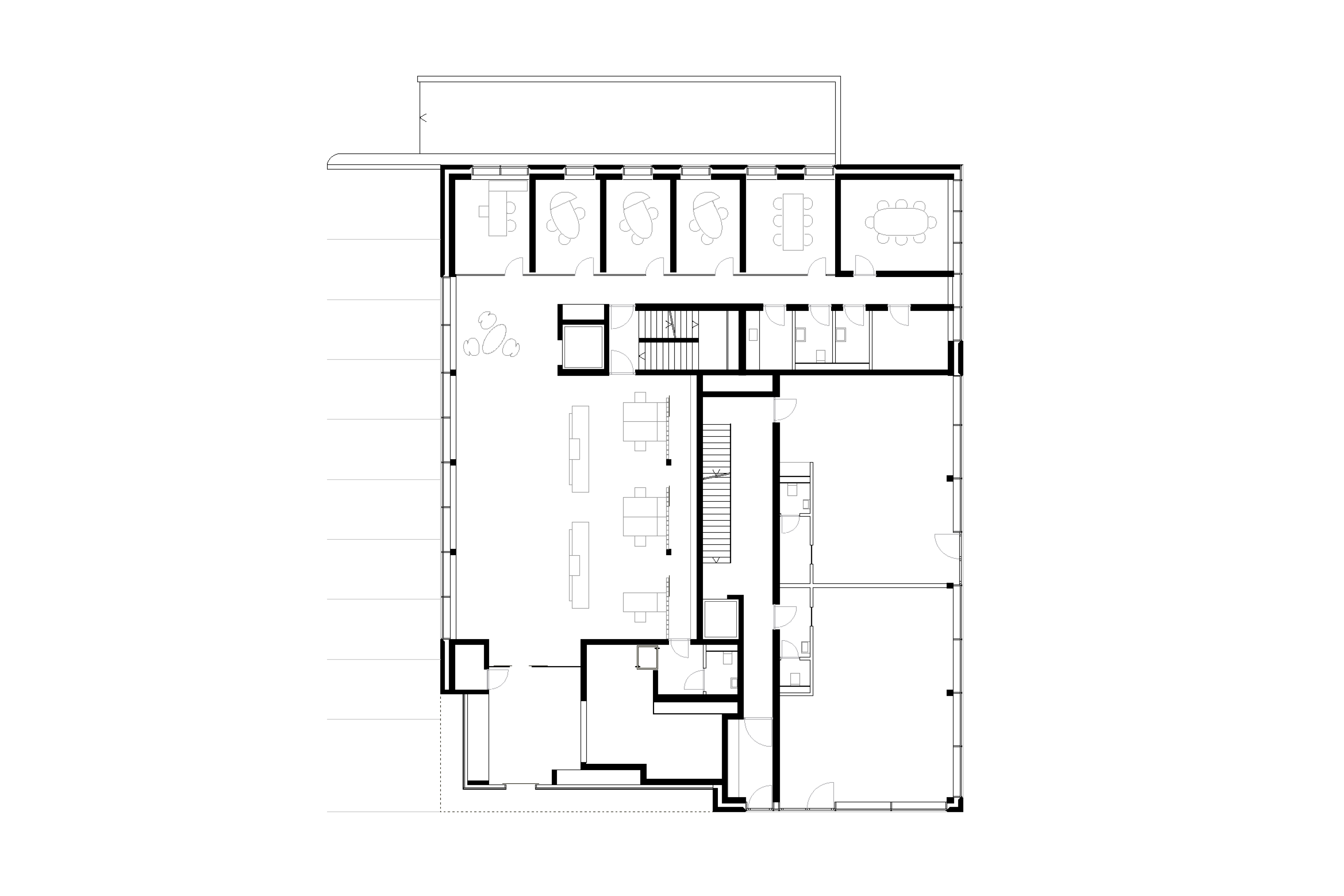
Geschäfts- und Wohnhaus Glennerstrasse Neubau Raiffeisenbank Surselva

  • Projektstatus gebaut
  • Planungszeitraum 2011 - 2014
  • Bauherrschaft Banca Raiffeisen Surselva
  • Standort Ilanz
  • Bauleitung GC Bauleitungen Gmbh, Ilanz
  • Fotografie Ralph Feiner, Malans

Ihr Browser ist veraltet!
Bitte aktualisieren Sie Ihren Browser, um diese Website korrekt darzustellen!
www.outdatedbrowser.com