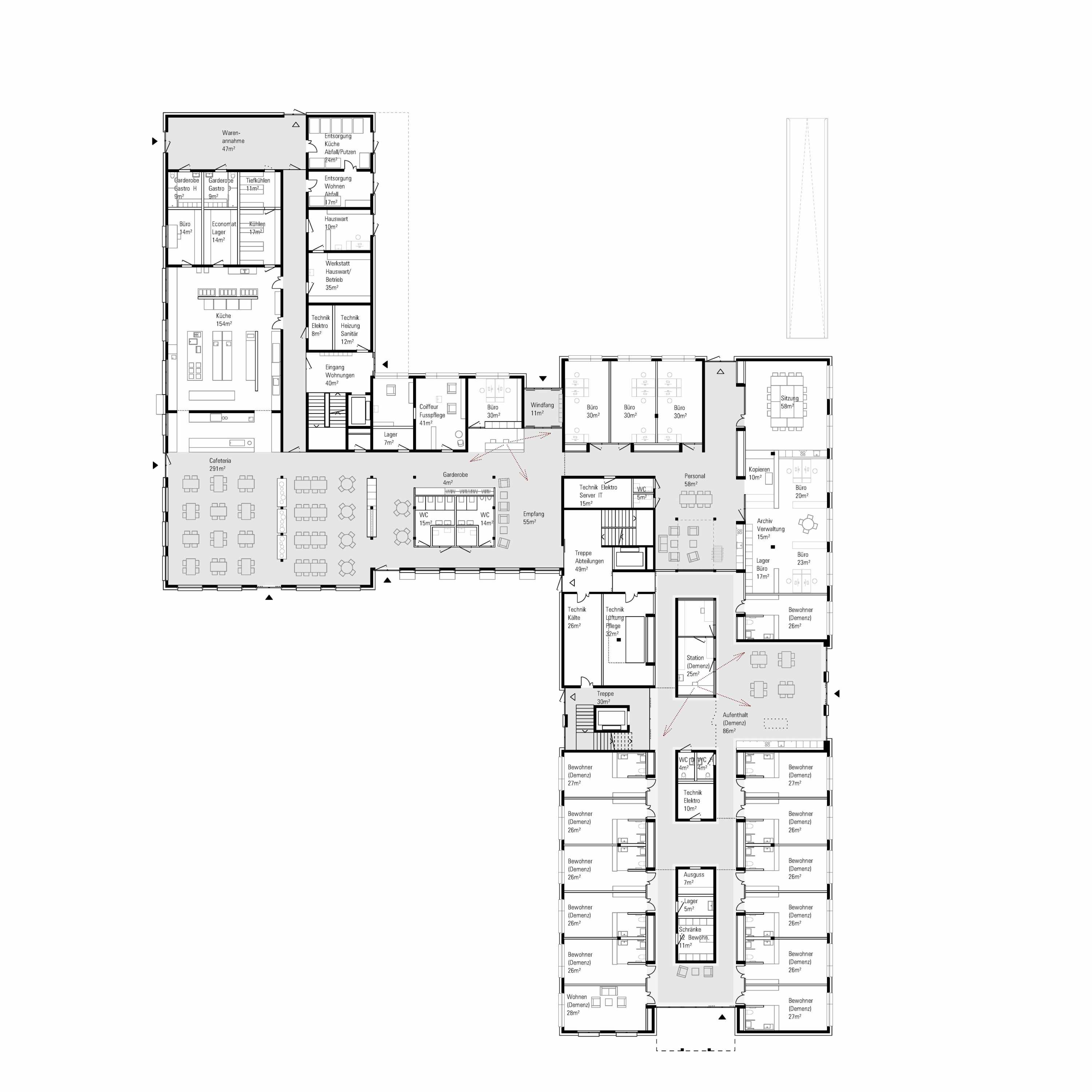
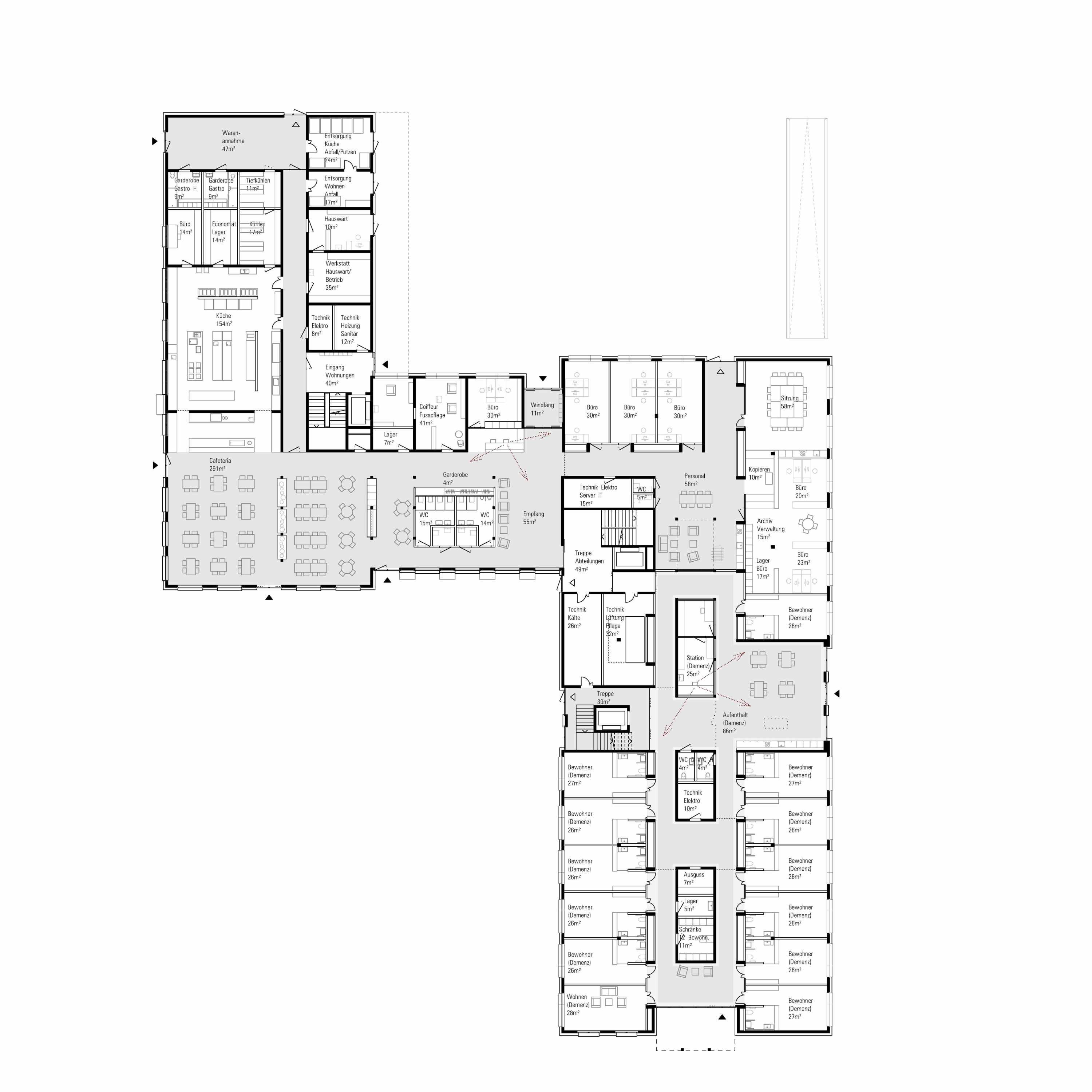
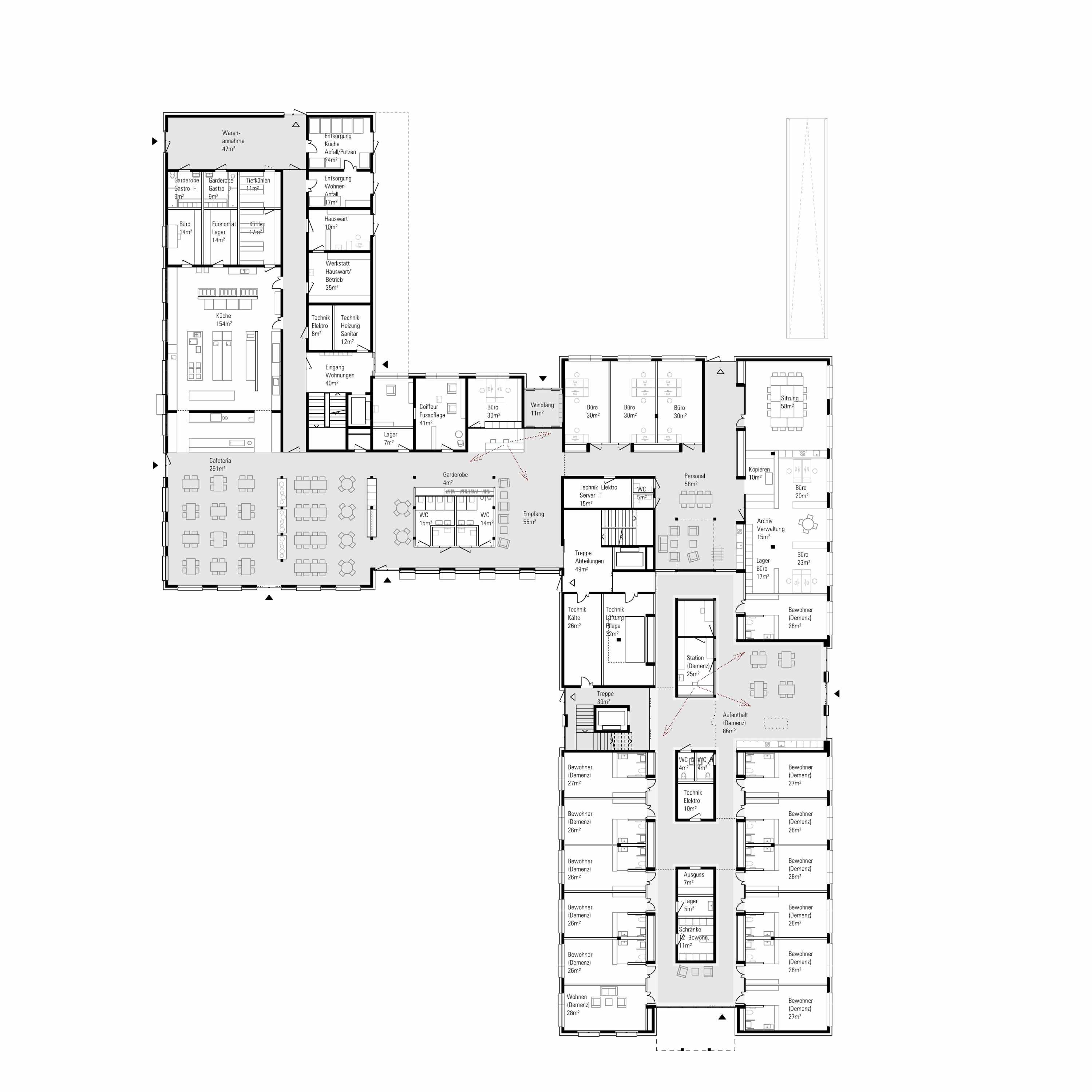
Neubau Alterszentrum, Walenstadt Gesamtleiterausschreibung mit Implenia Schweiz AG
- Projektstatus Studie / Wettbewerb
- Planungszeitraum 2025
- Bauherrschaft Riva Care AG
Neubau Alterszentrum, Walenstadt
Neubau Alterszentrum, Walenstadt
Ihr Browser ist veraltet!
Bitte aktualisieren Sie Ihren Browser, um diese Website korrekt darzustellen!
www.outdatedbrowser.com