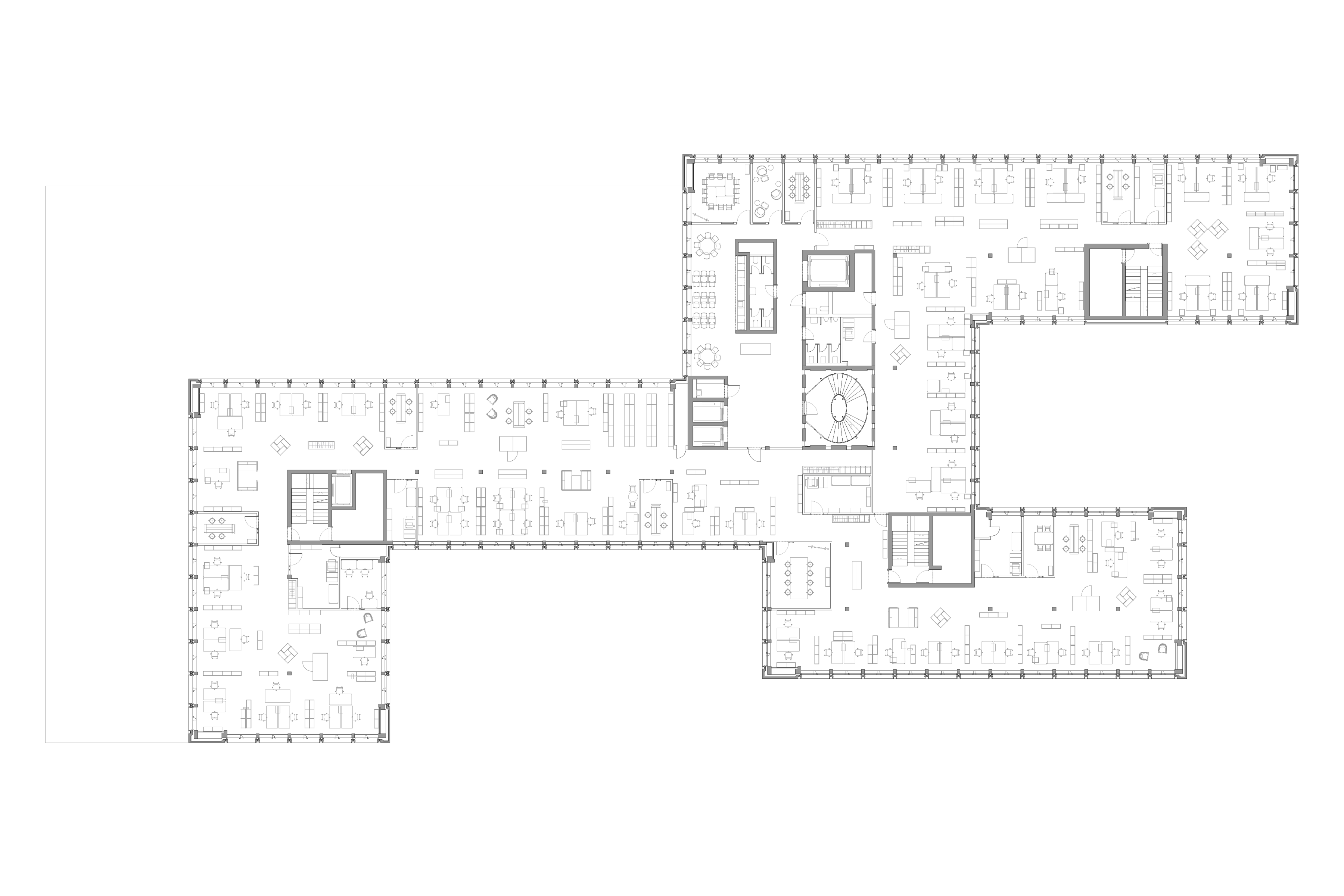
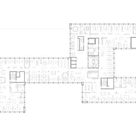
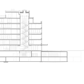
Kantonales Verwaltungszentrum sinergia Neubau

  • Projektstatus gebaut
  • Planungszeitraum 2014 – 2020
  • Bauherrschaft Kanton Graubünden vertreten durch HBA Graubünden
  • Standort Chur
  • Bauleitung Implenia Schweiz AG, Chur
  • Kubatur 84,970 m³
  • Fotografie Ralph Feiner, Malans

Ihr Browser ist veraltet!
Bitte aktualisieren Sie Ihren Browser, um diese Website korrekt darzustellen!
www.outdatedbrowser.com