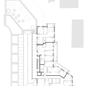
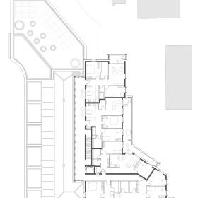
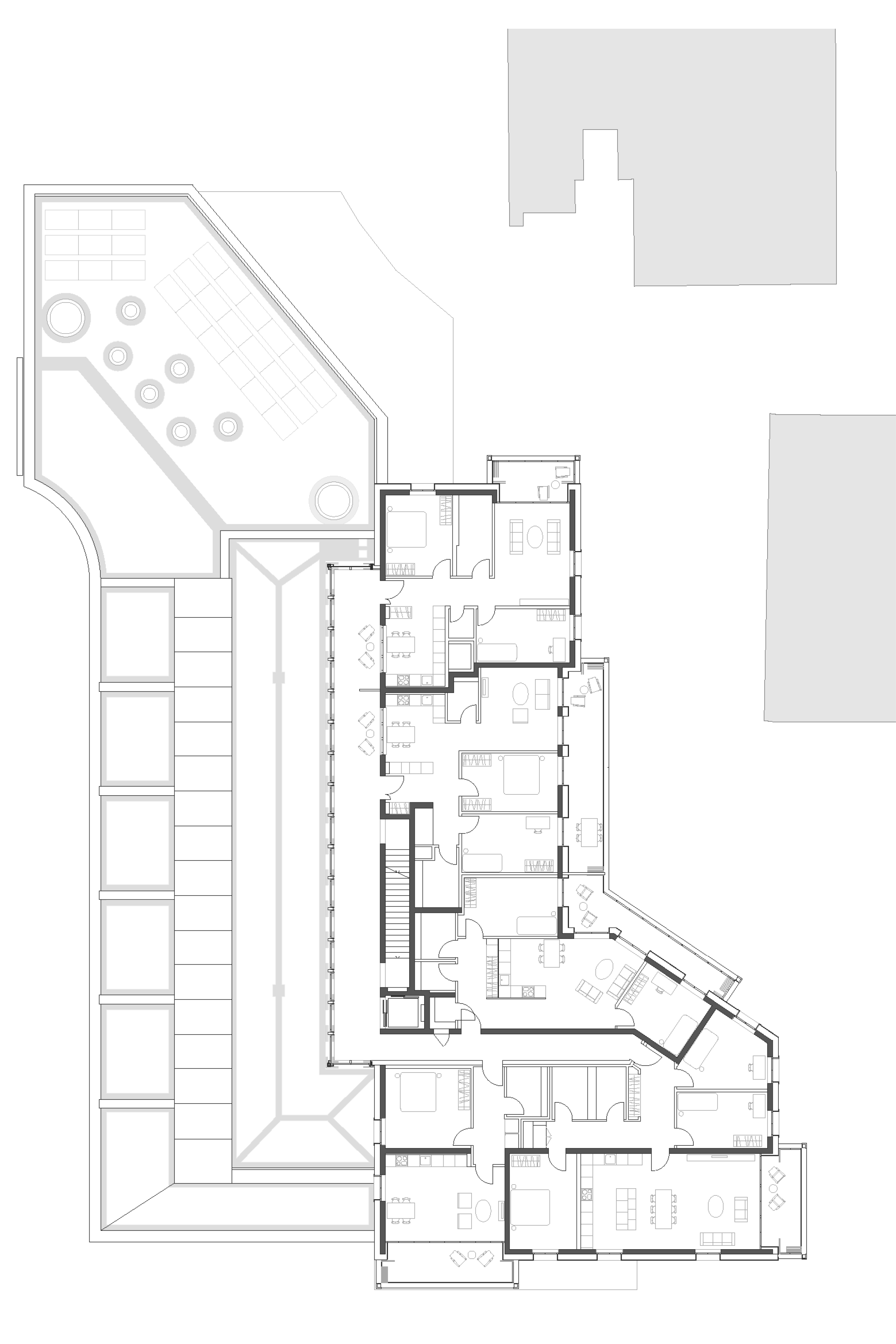
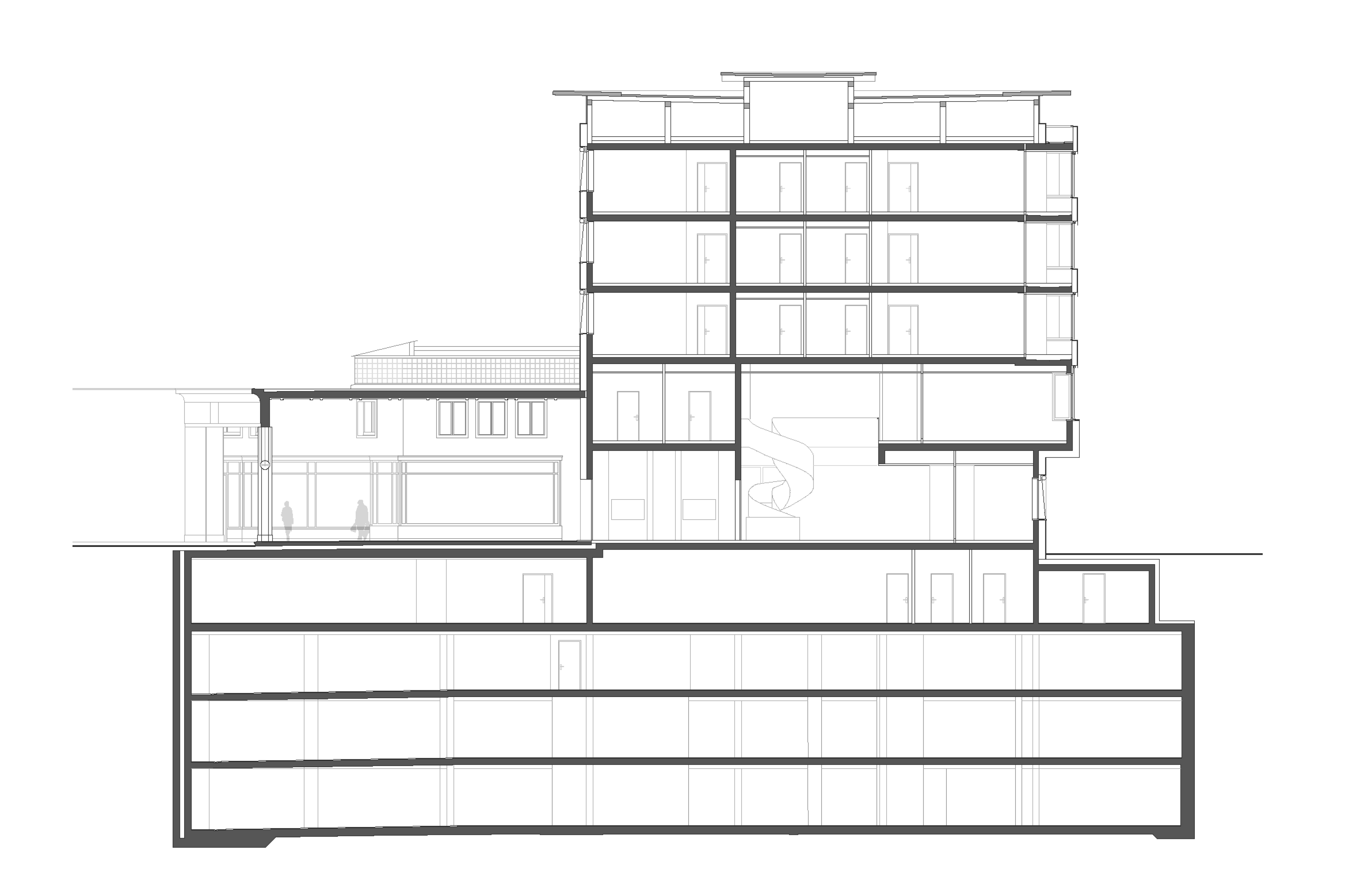
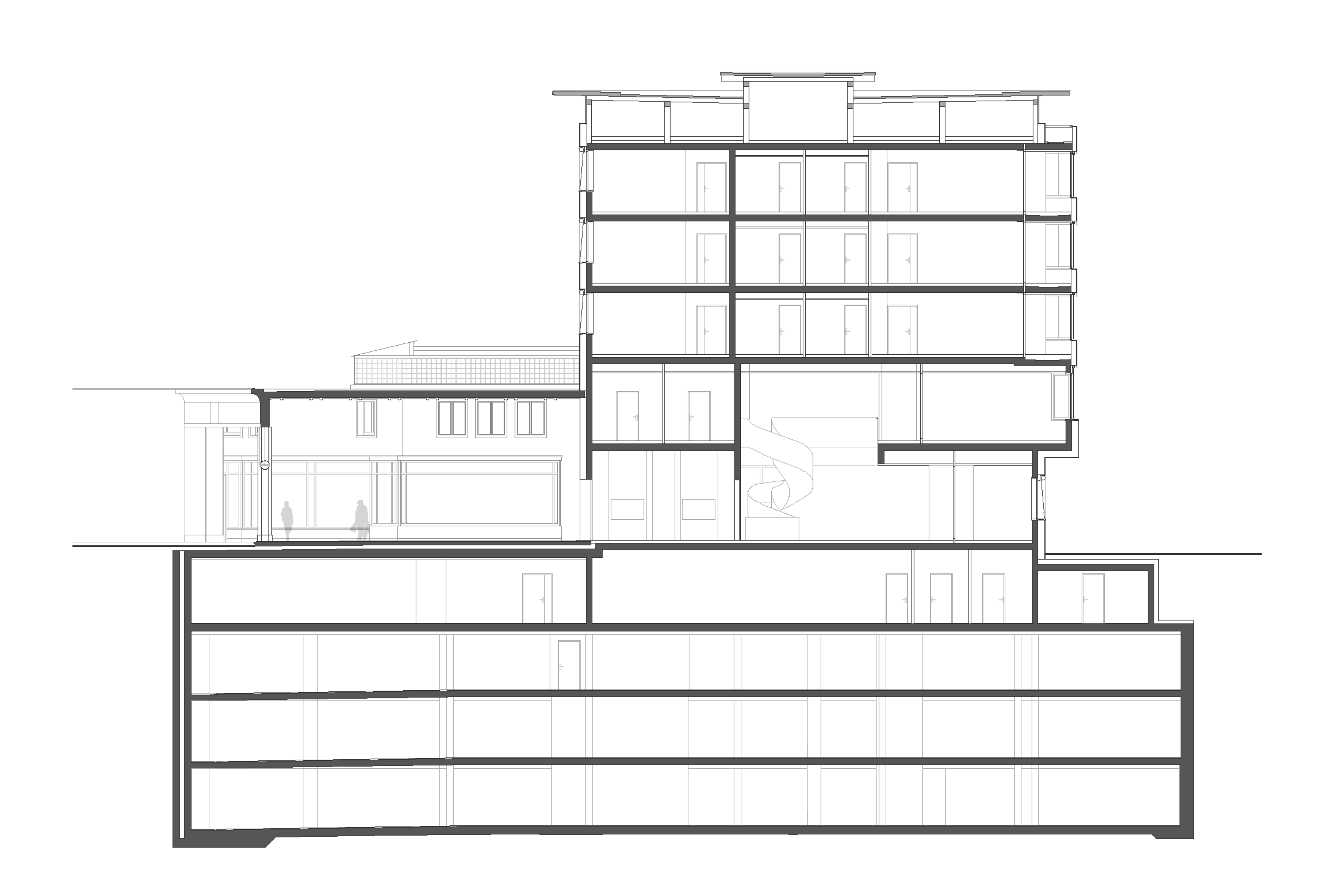
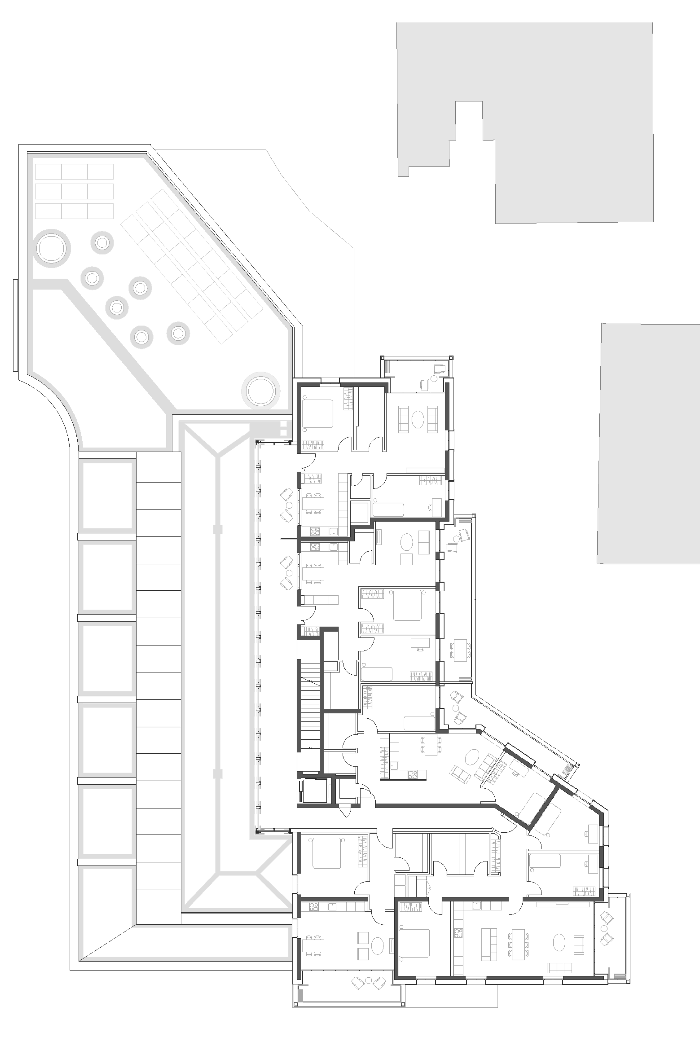
GKB Davos Neubau

  • Projektstatus gebaut
  • Planungszeitraum 2020- 2022
  • Standort Davos
  • Fotografie Ralph Feiner, Malans

Ihr Browser ist veraltet!
Bitte aktualisieren Sie Ihren Browser, um diese Website korrekt darzustellen!
www.outdatedbrowser.com