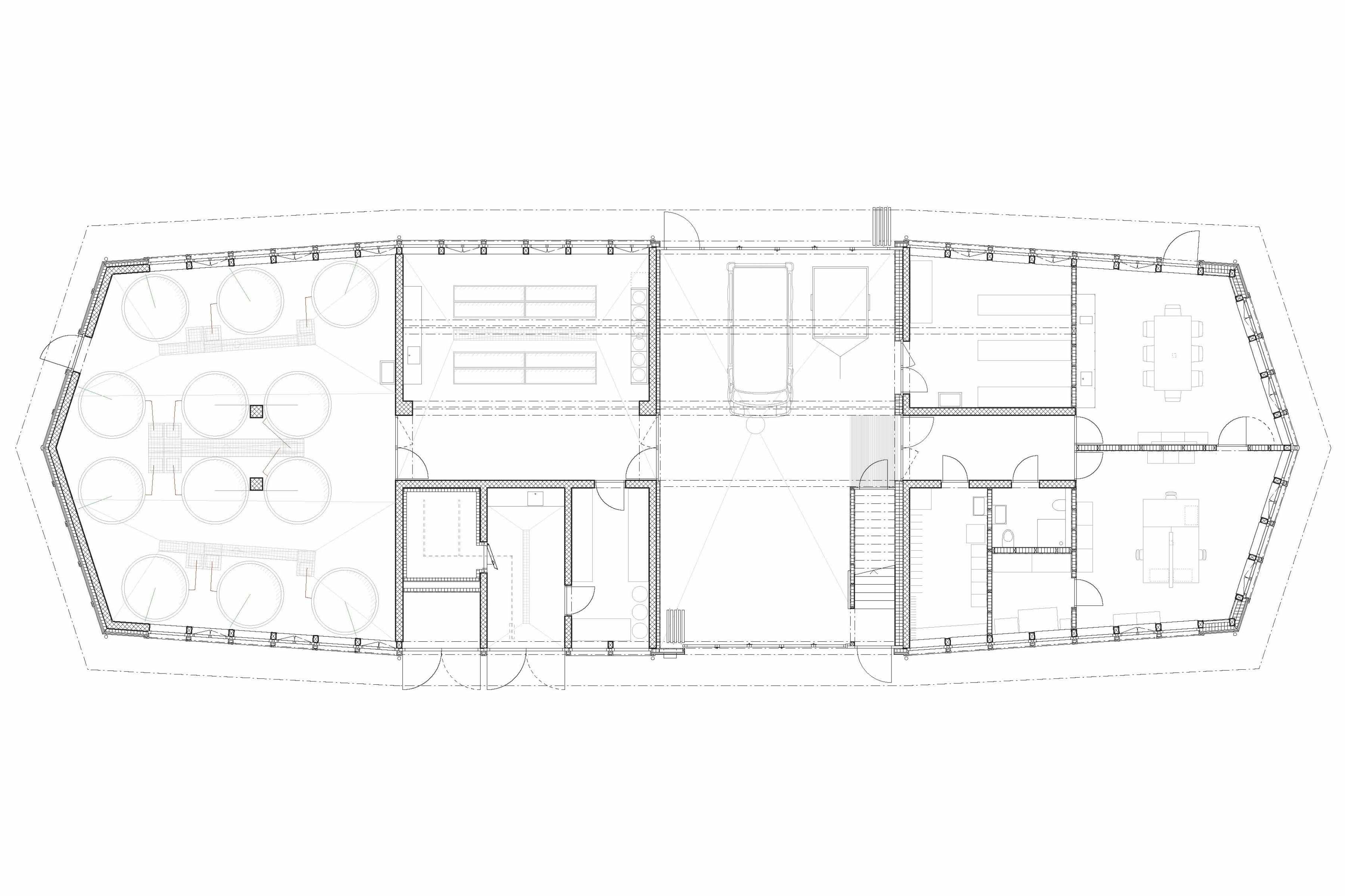
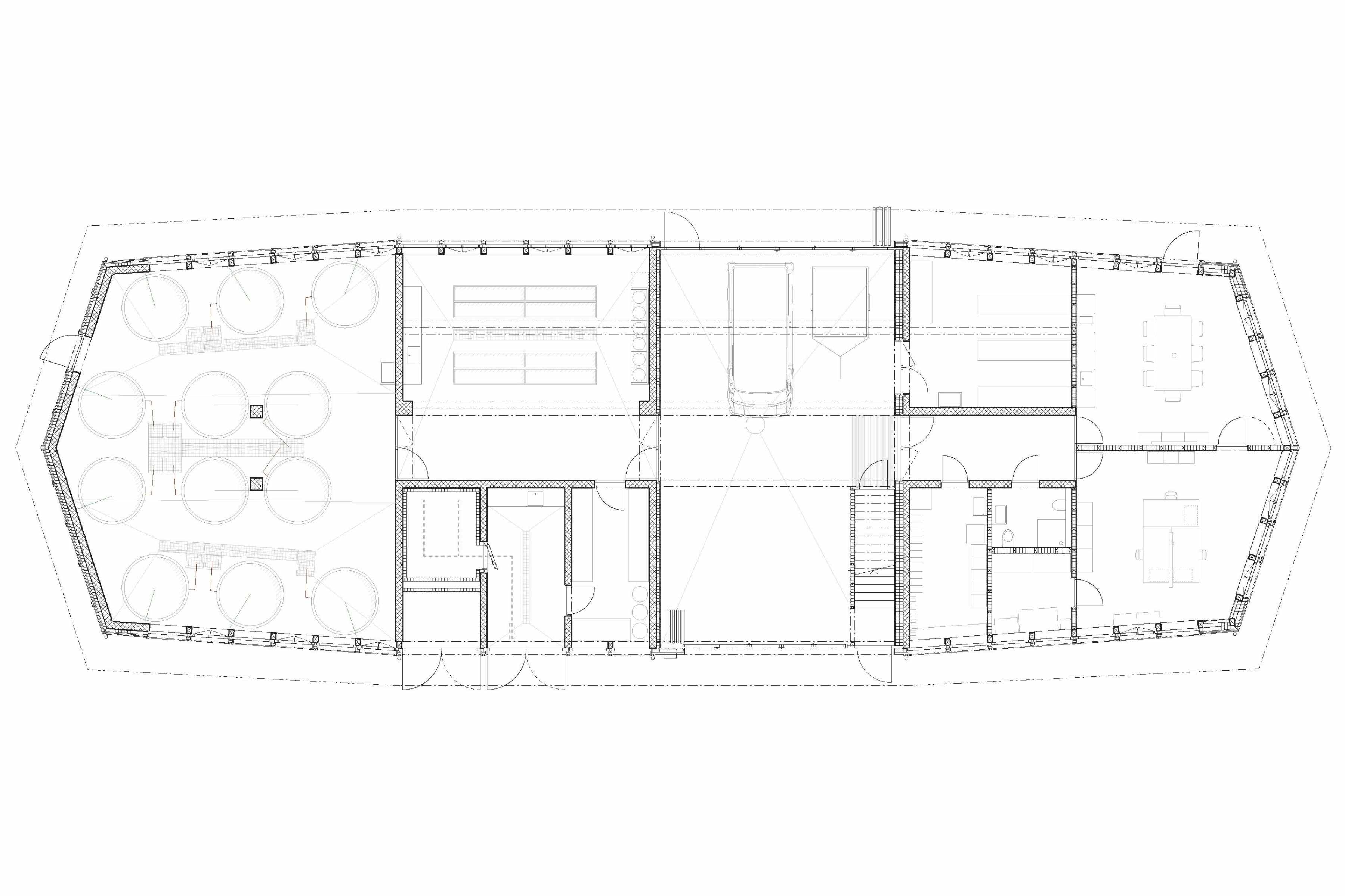
Fischzuchtanlage Klosters Ersatzneubau Betriebsgebäude

  • Projektstatus gebaut
  • Planungszeitraum 2021 - 2024
  • Fertigstellung 2024
  • Bauherrschaft Kanton Graubünden vertreten durch HBA Graubünden
  • Standort Klosters
  • Bauleitung D. Jüngling und A. Hagmann
  • Fotografie Yanik Bürkli

Ihr Browser ist veraltet!
Bitte aktualisieren Sie Ihren Browser, um diese Website korrekt darzustellen!
www.outdatedbrowser.com