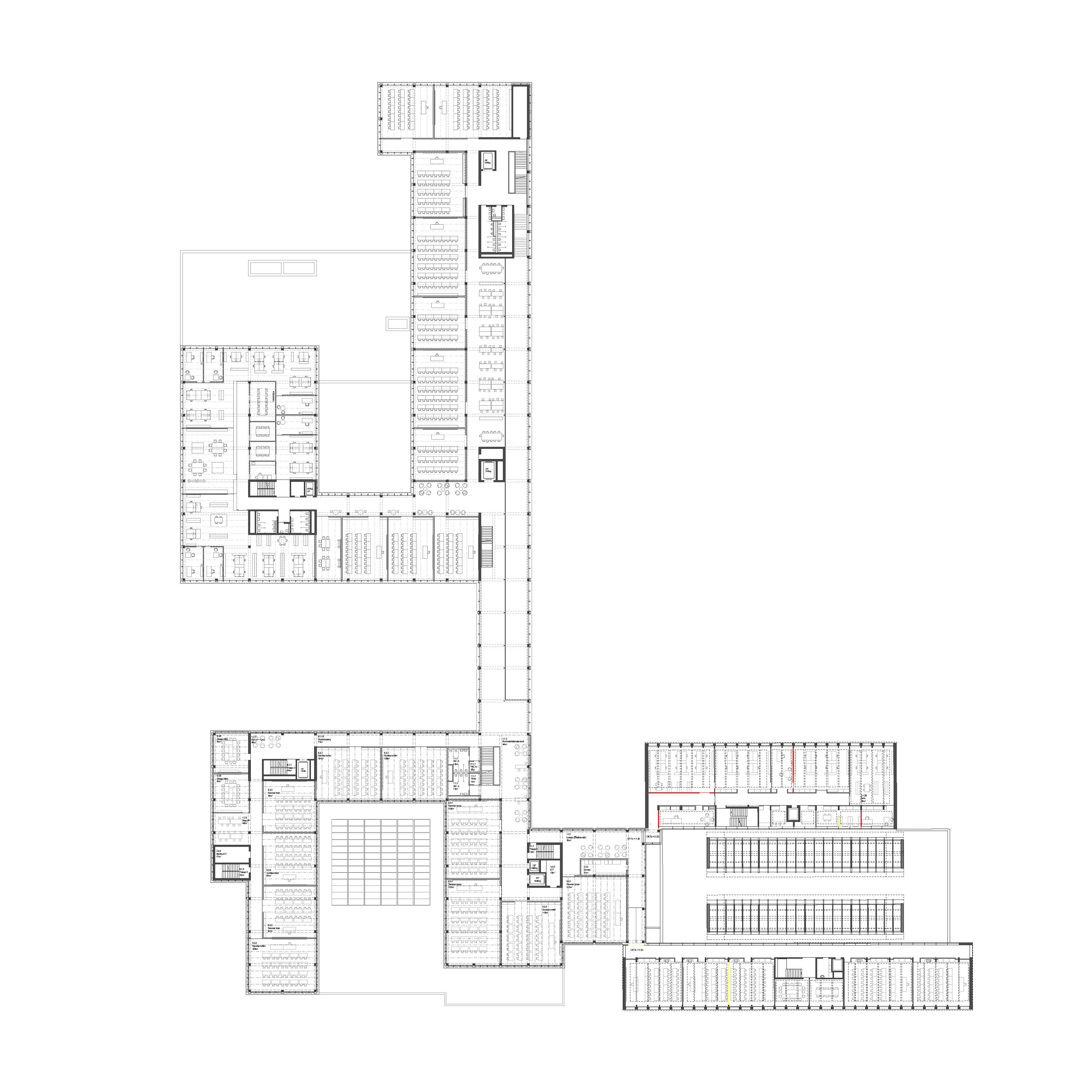
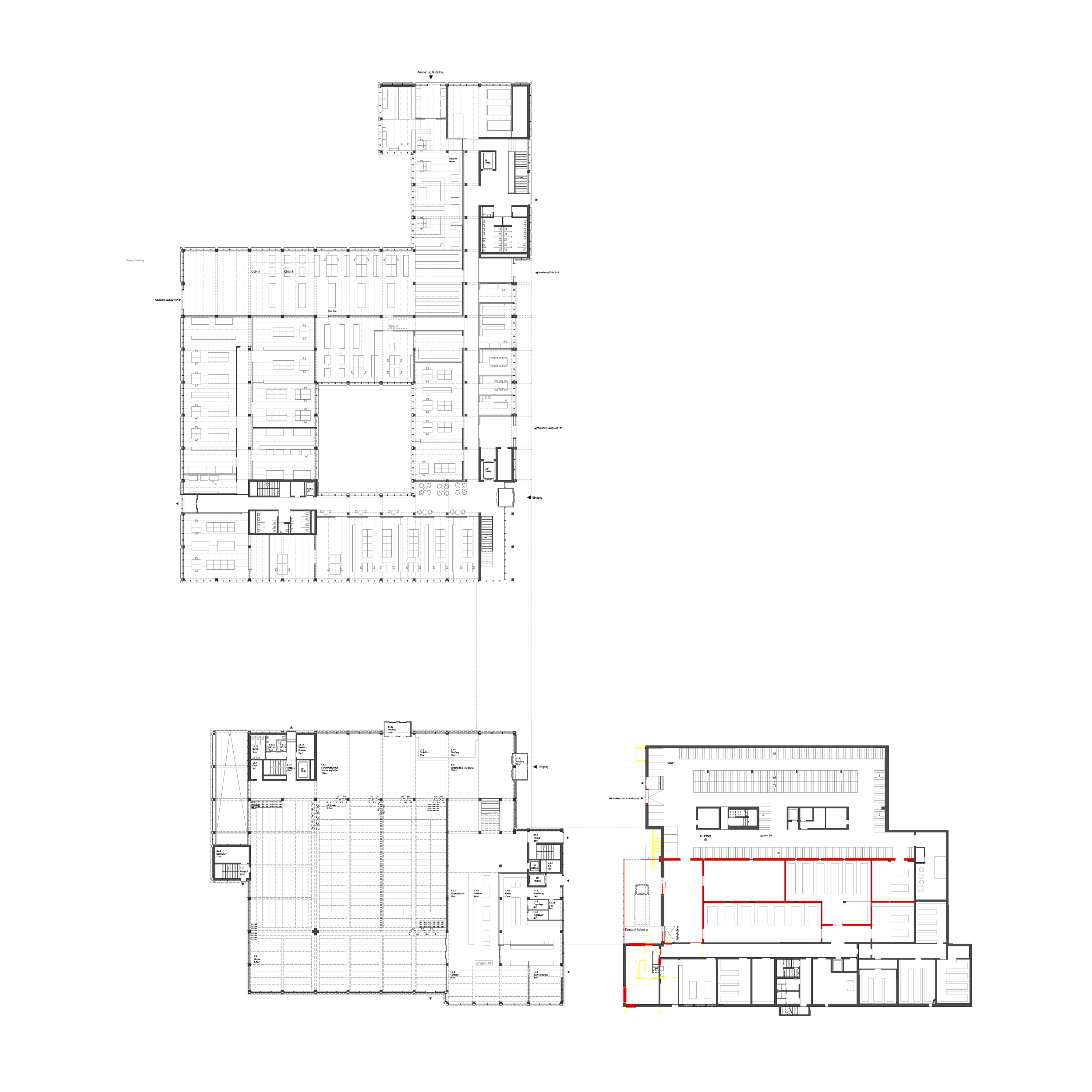
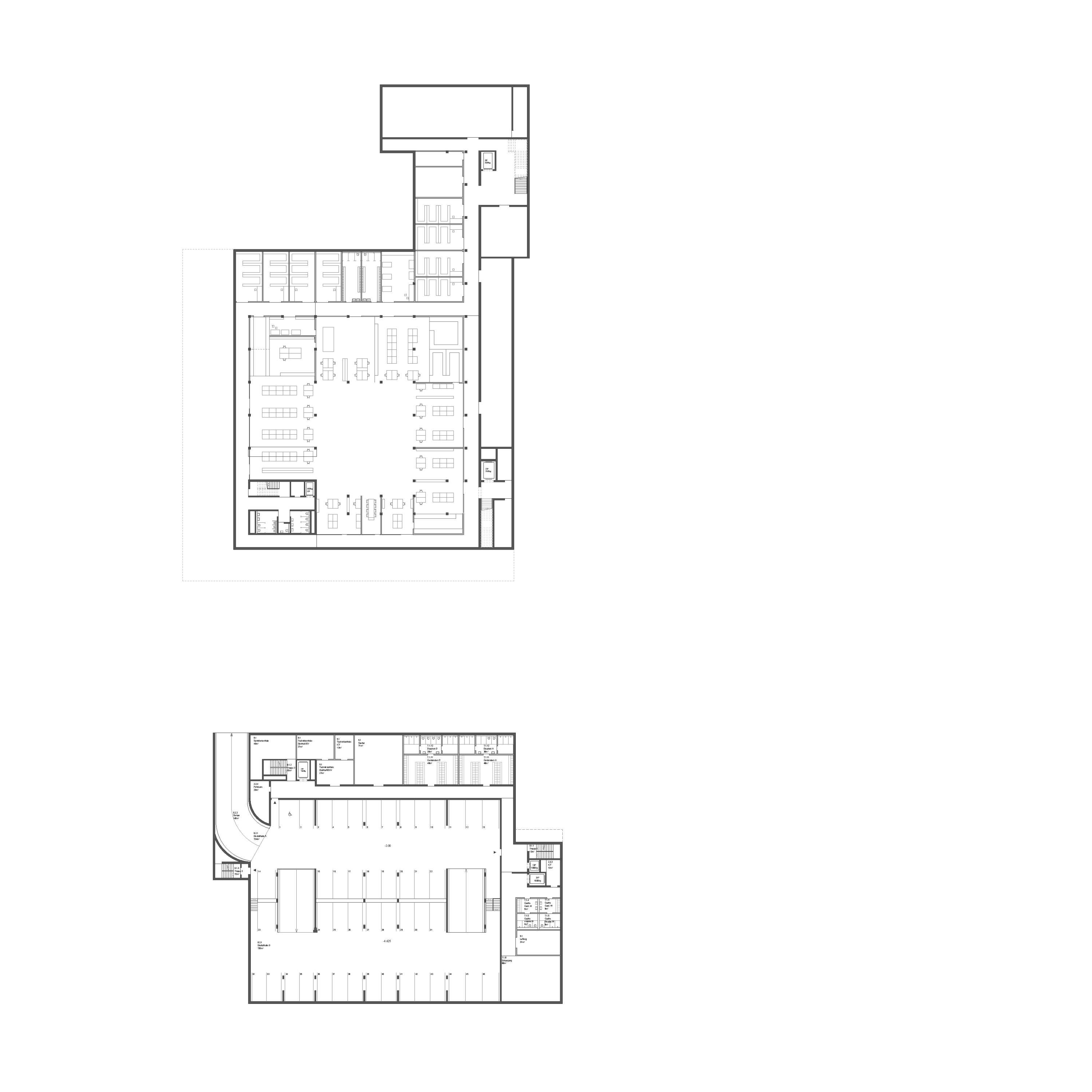
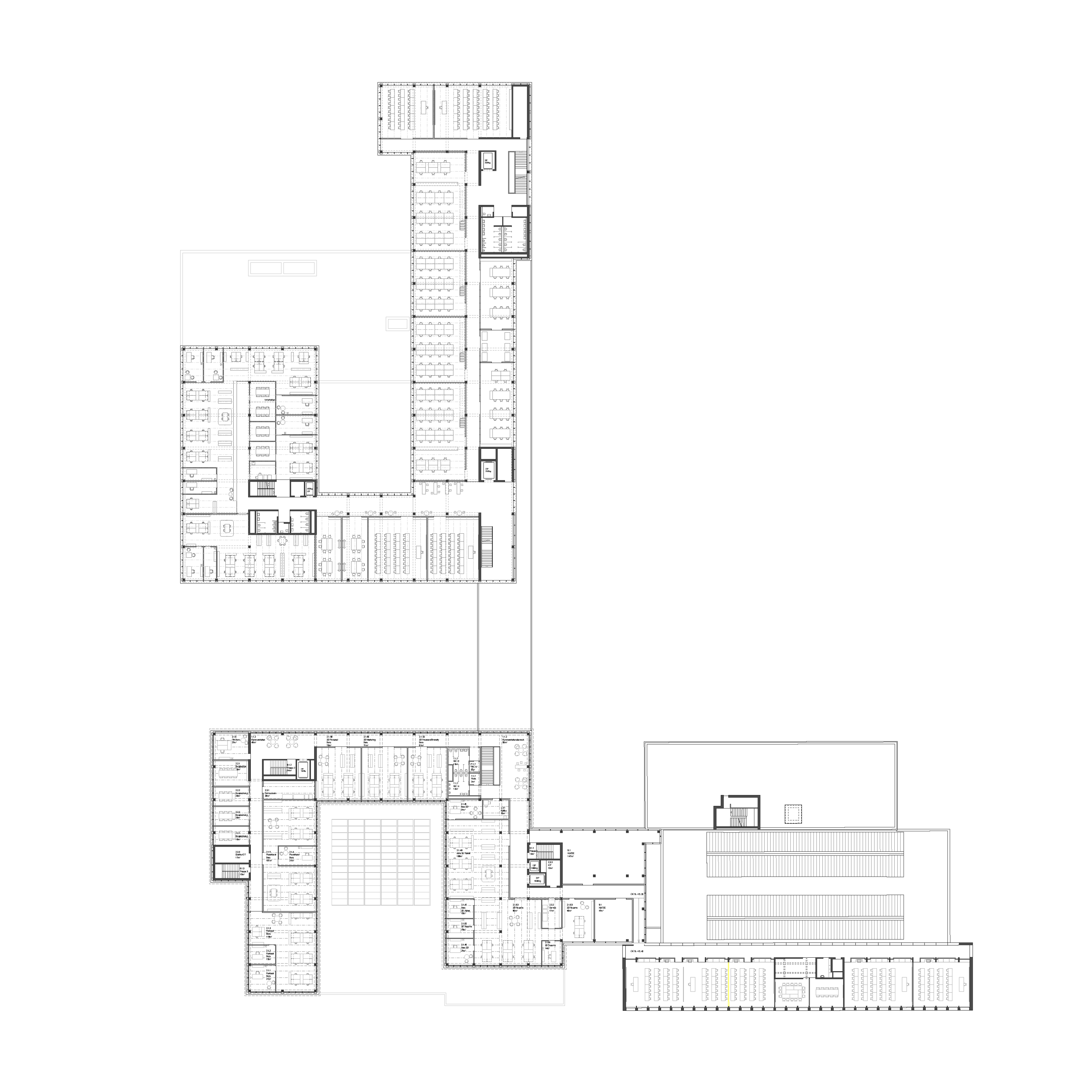
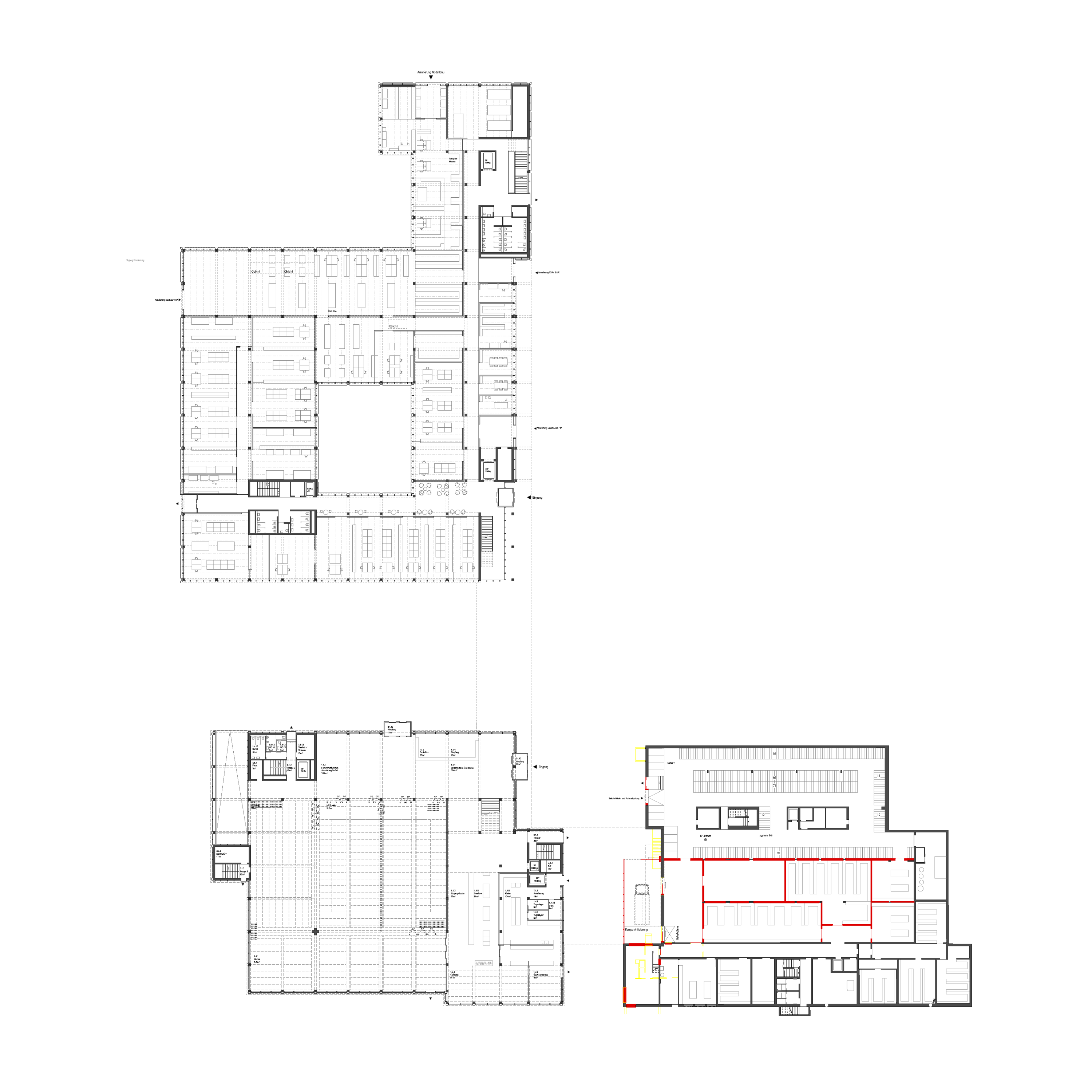
Fachhochschulzentrum Graubünden Wettbewerb

  • Projektstatus Studie / Wettbewerb
  • Planungszeitraum 2021
  • Standort Chur

Ihr Browser ist veraltet!
Bitte aktualisieren Sie Ihren Browser, um diese Website korrekt darzustellen!
www.outdatedbrowser.com